売買物件城ノ下住宅
No.1523
- 秋田県鹿角市十和田毛馬内字城ノ下95
- 価格:250万円
- 価格250万円
- 所在地
- 秋田県鹿角市十和田毛馬内字城ノ下95
- 交通
- ・JR十和田南駅 徒歩26分
・秋北バス毛馬内上町バス停 徒歩3分 - その他費用
- ・収入印紙代
・仲介手数料
・所有権移転登記代 - 物件種別・構造
- 中古一戸建 / 木造
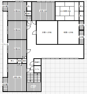
- 間取り/専有面積
- その他 / 417.6㎡ 和10・6.5×2、洋12・10・11.25×2・8×3・6.75、DK
- 築年月
- 1981年1月
- 階数(総戸数)
- 2階建 (1戸)
- 現況
- 入居済み
- 物件概要
-
- エレベーター
- オートロック
- 宅配ボックス
- BS
- CS
- CATV
- インターネット
- トランクルーム
- 管理人常駐
- 駐車場(近隣含)
- バイク置場
- 自転車置場
- 24時間ゴミ出し可
- リノベーション
- 所有権
- 借地権
- 底地権
- 新耐震基準
- 耐震基準適合証明書
- 免震・制震・耐震
- 長期優良住宅
- 低炭素住宅
- 安心R住宅
- 住宅性能評価書
- 建物状況調査
- 再建築不可
- 更地(更地渡し含)
- 古家有
- 建築条件無
- 設備概要
-
- エアコン
- TVモニタ付インターホン
- 照明器具
- システムキッチン
- IHクッキングヒーター
- オール電化
- 食器洗浄乾燥機
- 浄水器・整水器
- 洗面化粧台
- バス・トイレ別
- 追い焚き機能
- 温水洗浄便座
- 洗濯機置場
- 浴室乾燥機
- 24時間換気機能
- フローリング
- 床暖房
- 和室有
- メゾネット
- グルニエ・ロフト
- 専用庭・庭
- ルーフバルコニー
- バルコニー・ベランダ
- テラス
- 最上階
- 角部屋
- 南向き
- ペット相談
- 楽器相談
- 即引渡・即入居
- 取引態様
- 一般媒介
- 入居可能日
- 要相談
- 特記事項
- ・土地面積 862.95㎡
・建物面積 1F213.89㎡ 2F203.71㎡
・車庫あり
・土蔵造倉庫あり
・水洗トイレ(浄化槽)
・灯油ボイラー - 備考
- 以前、酒店として使っていた店舗部分あり。現状引渡になります。
- 周辺ガイド
- ・秋田銀行 毛馬内支店 160m
・ファミリーマート 鹿角毛馬内店 650m
・ツルハドラッグ 毛馬内店 1.0㎞
・ユニバース 毛馬内店 1.1㎞























